개거암거
계약일자 2023-08-14 동아산업 담당자:김진영부장(010-9424-4671)
계약일자 2023-08-14 동아산업 담당자:김진영부장(010-9424-4671)
| 번호 | 품명 | 규격 | 식별번호 | 단위 | 중량 (kg) |
조달단가 (상차도, VAT포함) |
업체명 | 사진 (도면) |
|---|---|---|---|---|---|---|---|---|
| 1 | 개거암거 | 1.0*1.0_160T*160T | 23943451 | M | 1,384 | 278,430 | 동아산업 |
|
| 2 | 개거암거 | 1.5*1.0_160T*160T | 21821275 | M | 1,584 | 340,930 | 동아산업 |
|
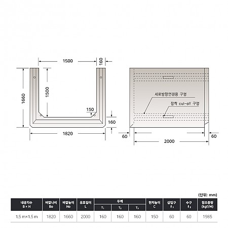
| 3 | 개거암거 | 1.5*1.5_160T*160T | 21820349 | M | 1,984 | 414,000 | 동아산업 |
|
| 4 | 개거암거 | 2.0*1.5_180T*160T | 21820348 | M | 2,344 | 534,190 | 동아산업 |
|
| 5 | 개거암거 | 2.0*2.0_180T*160T | 21820347 | M | 2,744 | 559,430 | 동아산업 |
|
| 6 | 개거암거 | 2.5*1.5_220T*200T | 21821282 | M | 3,195 | 730,430 | 동아산업 |
|
| 7 | 개거암거 | 3.0*1.0_260T*240T | 21821284 | M | 3,687 | 839,670 | 동아산업 |
|
| 8 | 개거암거 | 3.0*1.5_260T*240T | 21821285 | M | 4,287 | 916,380 | 동아산업 |
|
| 9 | 개거암거 | 3.0*2.0_260T*240T | 21821286 | M | 4,887 | 939,720 | 동아산업 |
|
| 10 | 개거암거 | 4.0*1.5_280T*260T | 21821290 | M | 5,339 | 1,161,500 | 동아산업 |
|
| 11 | 개거암거 | 4.0*2.0_280T*260T | 21820345 | M | 5,989 | 1,317,870 | 동아산업 |
|


